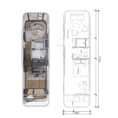
Una de las más espaciosas. Perfecta para una vivienda compacta con salón, baño, habitación y balcón.
La casa cápsula espacial usa materiales ligeros y resistentes, como aleaciones de aluminio y titanio. Cuenta con vidrio doble aislante, ventanas panorámicas de 270° y tragaluces, con un diseño futurista y tecnológico que brinda una experiencia espacial única.
PRECIO DESDE: 73.000€*
| Configuración estándar externa | Marco principal Sistema de estructura | Soldadura integrada con tubo de acero cuadrado galvanizado |
| Sistema de envolvente del edificio | Muro cortina metálico: Placa de aluminio con pulverización de polvo de fluorocarbono | |
| Muro cortina de vidrio: Vidrio templado de doble acristalamiento con aislamiento hueco de baja emisividad de 6 mm +12 A+6mm | ||
| Sistema de aislamiento térmico | Aislamiento de poliuretano de 70mm de espesor | |
| Puerta y ventana | Puerta de entrada: Puerta de acero con cerradura inteligente; Ventanas de aluminio con aislamiento térmico y doble acristalamiento templado. Vidrio hueco aislante Low-E de 6 mm + 12 A + 6 mm |
| Configuración estándar interna | Decoración de pared / techo | Pared / techo de la sala de estar / dormitorio: Tablero OSB para el panel de revestimiento; tablero de fibra de madera y bambú para la decoración del revestimiento Pared de baño: Placa de presión de fibra de cemento impermeable para panel de revestimiento; Tablero resistente a los rayos UV estilo mármol para decoración de revestimiento |
| Sistema de suelo | 1. Tablero de silicato de calcio como capa base 2. Suelo SPC como capa de acabado. Balcón: Suelo de tarima de WPC | |
| Sistema eléctrico | Electricidad Fuerte: caja de distribución, disyuntores de control, protectores, interruptores, enchufes, etc. | |
| Electricidad débil: caja de distribución, enrutador, toma de red cableada. | ||
| Sistema eléctrico con acceso con tarjeta | ||
| Sistema de abastecimiento de agua y drenaje | Tubería de suministro de agua: PPR Tubería de drenaje: PVC | |
| Sistema de protección de aislamiento de suministro de agua y drenaje: Cable de rastreo eléctrico | ||
| Sistema de iluminación | Iluminación interior: downlights y luces de cinta | |
| Instalaciones de baño | Separación de líquidos y sólidos: inodoro inteligente, lavabo, grifo, espejo inteligente, estante de almacenamiento de aleación de aluminio, ducha. | |
| Aire acondicionado | Aire acondicionado de pared de 1.5 P con doble función (calefacción / refrigeración) o aire acondicionado de conducto de 2 P con doble función (calefacción / refrigeración) | |
| Calentador de agua | Configuración estándar: 60L, 2 – 4 personas |
| Configuración estándar externa | Marco principal Sistema de estructura | Soldadura integrada con tubo de acero cuadrado galvanizado |
| Sistema de envolvente del edificio | Muro cortina metálico: Placa de acero galvanizado o Placa de aluminio Muro cortina de vidrio: Vidrio templado de doble acristalamiento hueco con aislamiento Low-E, unidades de vidrio de tamaño 6mm + 12A + 6mm | |
| Sistema de aislamiento térmico | Aislamiento de EPS | |
| Puerta y ventana | Puerta de entrada: Puerta de cristal; Ventanas de aluminio con aislamiento térmico con vidrio aislante templado |
| Configuración estándar interna | Decoración de pared / techo | Pared / techo de la sala de estar / dormitorio: Tablero OSB para el panel de revestimiento; tablero de fibra de madera y bambú para la decoración del revestimiento Pared de baño: Placa de presión de fibra de cemento impermeable para panel de revestimiento; Tablero resistente a los rayos UV estilo mármol para decoración del revestimiento |
| Sistema de suelo | 1. Tablero de silicato de calcio como capa base 2. Suelo SPC como capa de acabado. Balcón: Suelo de tarima de WPC | |
| Sistema eléctrico | Electricidad fuerte: caja de distribución, disyuntores de control, protectores, interruptores, enchufes, etc. Electricidad débil: caja de distribución, enrutador, toma de red cableada | |
| Sistema de abastecimiento de agua y drenaje | Tubería de suministro de agua: PPR Tubería de drenaje: PVC Sistema de protección de aislamiento de suministro de agua y drenaje: Cable de rastreo eléctrico | |
| Sistema de iluminación | Iluminación interior: downlights y luces de cinta | |
| Instalaciones de baño | Separación de líquidos y sólidos: inodoro inteligente, lavabo, grifo, espejo inteligente, estante de almacenamiento de aleación de aluminio, ducha. | |
| Aire acondicionado | Aire acondicionado de pared de 1.5 P con doble función (calefacción / refrigeración) o aire acondicionado de 2 P con doble función (calefacción / refrigeración) | |
| Calentador de agua | Configuración estándar: 60L, 2 – 4 personas |
| Artículo | Contenido |
|---|---|
| Sistema de casas inteligentes | Control por voz/aplicación de teléfono móvil/control manual/inserción de tarjeta para suministro de energía (puede controlar tiras de luces interiores y exteriores, luces interiores y cortinas) |
| Tragaluz inteligente | Mando a distancia eléctrico |
| Cortina monorriel inteligente | Cortinas de tela |
| Cortina inteligente de doble riel | Cortinas de tela + cortinas de gasa |
| Cortina de riel ordinaria | Cortinas de tela |
| Cocina personalizada | Incluye gabinetes de cocina superiores e inferiores, fregadero, campana extractora, cocina de inducción, refrigerador |
| Balcón completamente cerrado | |
| Calefacción por suelo radiante | Geotermia con grafeno |
| Cama | Cama flotante / colchón |
| Vidrio de doble capa por vidrio de triple capa | Vidrio en ambos lados de la cabina |
| Pantalla de proyección | 72 pulgadas |
| Proyector | Con barra para colgar |
| Sistema de Aire Acondicionado | Succión de techo |
| Tira de luz neón exterior | El color se puede ajustar y controlar |
Los plazos de entrega
según demanda


